先装修满意后付款,让您装修0风险【自养工人,川派工艺,品牌材料,环保整装】
企业微博   |  企业微信       网站地图
029-85229800
服务热线:西安小寨西旅国际6F
主页 > 精彩案例>山水领秀装修效果图

山水领秀装修效果图

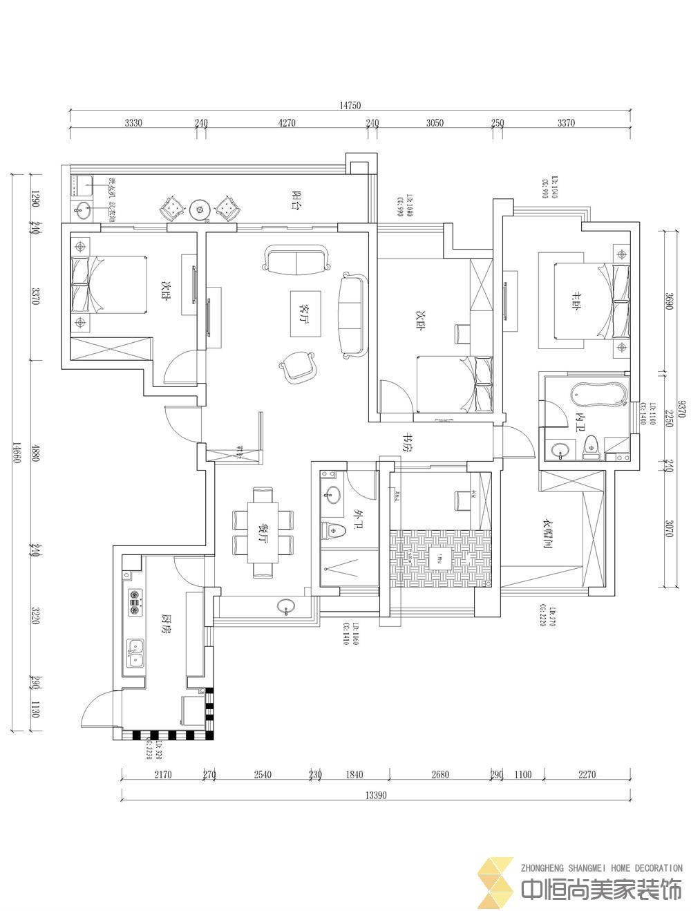
  • 本案皆在打造一个简约时尚的现代空间,硬装上没有做过多的装饰,一整面木饰面墙有效的隐藏了一个房间的房门,没有主灯的吊顶简单大气,进门玄关三块重墨的玻璃既起到玄关的作用又与整个色调完美契合
装修详情
累加访问量1421
预约业主共882
  • 风格: 现代简约
  • 面积: 100-130㎡
山水领秀装修效果图山水领秀装修效果图山水领秀装修效果图山水领秀装修效果图山水领秀装修效果图山水领秀装修效果图山水领秀装修效果图山水领秀装修效果图山水领秀装修效果图山水领秀装修效果图山水领秀装修效果图山水领秀装修效果图山水领秀装修效果图山水领秀装修效果图山水领秀装修效果图山水领秀装修效果图山水领秀装修效果图山水领秀装修效果图山水领秀装修效果图

评价

我要评价

满意度:
验证码: 验证码,看不清楚?请点击刷新验证码

按此风格设计

已有882人提交

提交信息,试试看!

已有268人提交