先装修满意后付款,让您装修0风险【自养工人,川派工艺,品牌材料,环保整装】
企业微博   |  企业微信       网站地图
029-85229800
服务热线:西安小寨西旅国际6F
主页 > 精彩案例>西安理工大学家属院效果图

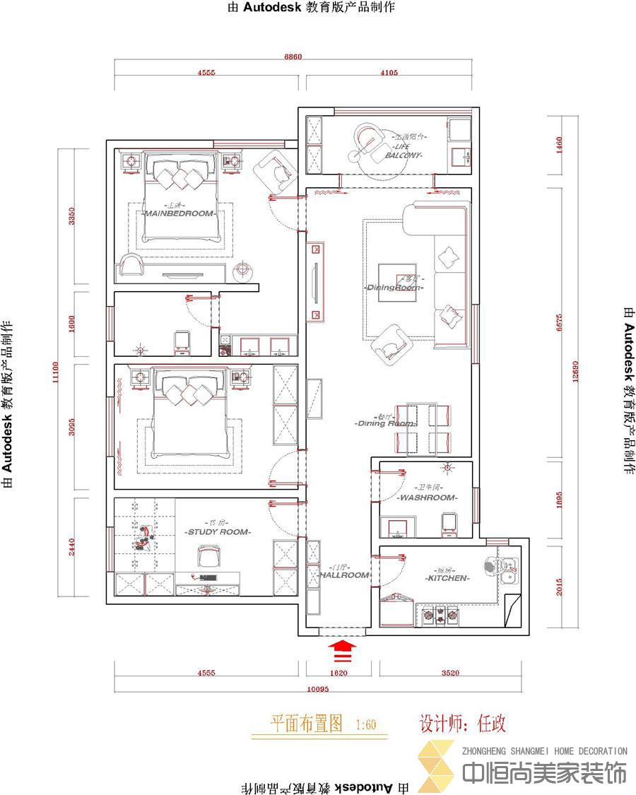
西安理工大学家属院效果图

  • 业主夫妇均为年轻人,平常生活上班非常累,想要很舒适的感受,那北欧风格就非常的适合,加上功能上的实用性,创造出舒适使用的居家环境......
装修详情
累加访问量6367
预约业主共3798
  • 面积: 100-130㎡
西安理工大学家属院效果图西安理工大学家属院效果图西安理工大学家属院效果图西安理工大学家属院效果图西安理工大学家属院效果图西安理工大学家属院效果图

评价

我要评价

满意度:
验证码: 验证码,看不清楚?请点击刷新验证码

按此风格设计

已有3798人提交

提交信息,试试看!

已有268人提交