先装修满意后付款,让您装修0风险【自养工人,川派工艺,品牌材料,环保整装】
企业微博   |  企业微信       网站地图
029-85229800
服务热线:西安小寨西旅国际6F
主页 > 精彩案例>凤鸣华府效果图

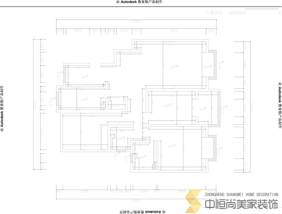
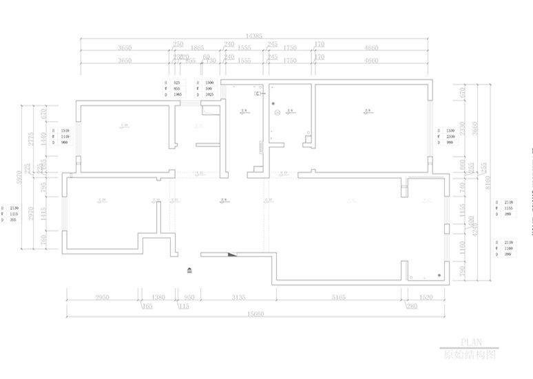
凤鸣华府效果图

  • 基本理念:考虑到业主的要求,本案将现代、艺术表现作为设计的第一要素,以黑白灰、冷色调为基础,突出现代、艺术感觉。 风格主题:现代、艺术、空间感。 设计思路:本案设计主题为营造一个现代、时尚、不乏艺术气息的时尚家装为理念,以黑白灰的现代表现手法,以空间、艺术、线条张力等几个方面进行思路拓展,力求在满足客户要求的基础上充分发挥设计的想象力,以点、线、面的设计立面为基础,从局部到空间再到全房间达到设计的完美统一。
装修详情
累加访问量2509
预约业主共947
  • 面积: 130-150㎡
  • 工程造价: 8-11万
凤鸣华府效果图凤鸣华府效果图凤鸣华府效果图凤鸣华府效果图凤鸣华府效果图凤鸣华府效果图凤鸣华府效果图

评价

我要评价

满意度:
验证码: 验证码,看不清楚?请点击刷新验证码

按此风格设计

已有947人提交

提交信息,试试看!

已有268人提交