先装修满意后付款,让您装修0风险【自养工人,川派工艺,品牌材料,环保整装】
企业微博   |  企业微信       网站地图
029-85229800
服务热线:西安小寨西旅国际6F
主页 > 精彩案例>大华公园世家

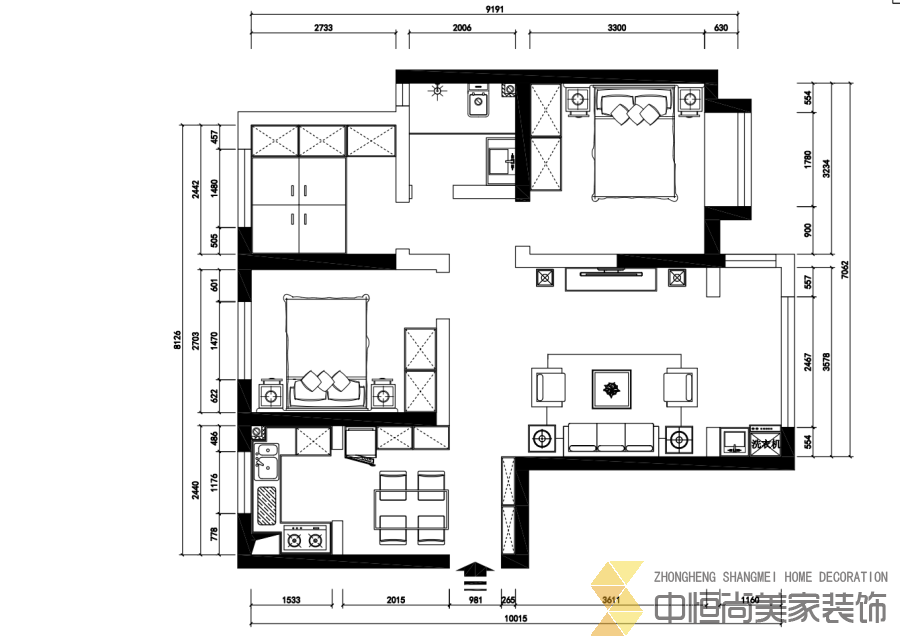
大华公园世家

装修详情
累加访问量1827
预约业主共759
  • 面积: 100-130㎡
大华公园世家大华公园世家大华公园世家大华公园世家大华公园世家大华公园世家

评价

我要评价

满意度:
验证码: 验证码,看不清楚?请点击刷新验证码

按此风格设计

已有759人提交

提交信息,试试看!

已有268人提交