先装修满意后付款,让您装修0风险【自养工人,川派工艺,品牌材料,环保整装】
企业微博   |  企业微信       网站地图
029-85229800
服务热线:西安小寨西旅国际6F
主页 > 精彩案例>自然界云栖效果图

自然界云栖效果图

装修详情
累加访问量2304
预约业主共514
  • 风格: 其它
  • 面积: 100-130㎡

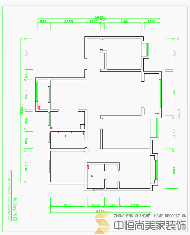
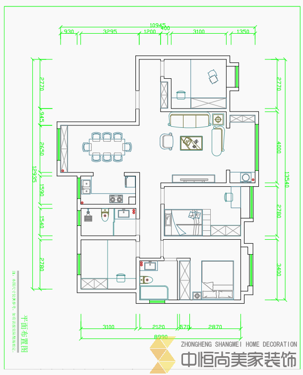
自然界云栖 127 现代轻奢

自然界云栖效果图自然界云栖效果图自然界云栖效果图自然界云栖效果图自然界云栖效果图自然界云栖效果图

评价

我要评价

满意度:
验证码: 验证码,看不清楚?请点击刷新验证码

按此风格设计

已有514人提交

提交信息,试试看!

已有268人提交