先装修满意后付款,让您装修0风险【自养工人,川派工艺,品牌材料,环保整装】
企业微博   |  企业微信       网站地图
029-85229800
服务热线:西安小寨西旅国际6F
主页 > 精彩案例>华山幸福家园效果图

华山幸福家园效果图

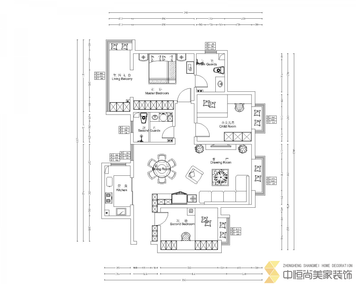
  • 设计说明: 该户型属于典型的南北通透采光充足的户型,本身的设计点主要围绕客户的生活起居,爱好习惯,和硬性要求来规划,通过拆除不必要的墙体来增加房屋通透性.解决入户鞋柜问题,以及需求一个较大的厨房。房子的结构属于两室两厅一卫的结构,餐厅和门厅、客厅属于一个相通的空间,设计的时候充分利用门厅的卧室门区域,隐藏式门扇,巧妙地与鞋柜融合为一体,美观大气。
装修详情
累加访问量2714
预约业主共924
  • 风格: 美式
  • 户型: 三居室装修
  • 面积: 130-150㎡

华山幸福家园效果图华山幸福家园效果图


华山幸福家园效果图华山幸福家园效果图

华山幸福家园效果图

华山幸福家园效果图

华山幸福家园效果图

华山幸福家园效果图



评价

我要评价

满意度:
验证码: 验证码,看不清楚?请点击刷新验证码

按此风格设计

已有924人提交

提交信息,试试看!

已有268人提交