先装修满意后付款,让您装修0风险【自养工人,川派工艺,品牌材料,环保整装】
企业微博   |  企业微信       网站地图
029-85229800
服务热线:西安小寨西旅国际6F
主页 > 精彩案例>龙湖香醍国际效果图

龙湖香醍国际效果图

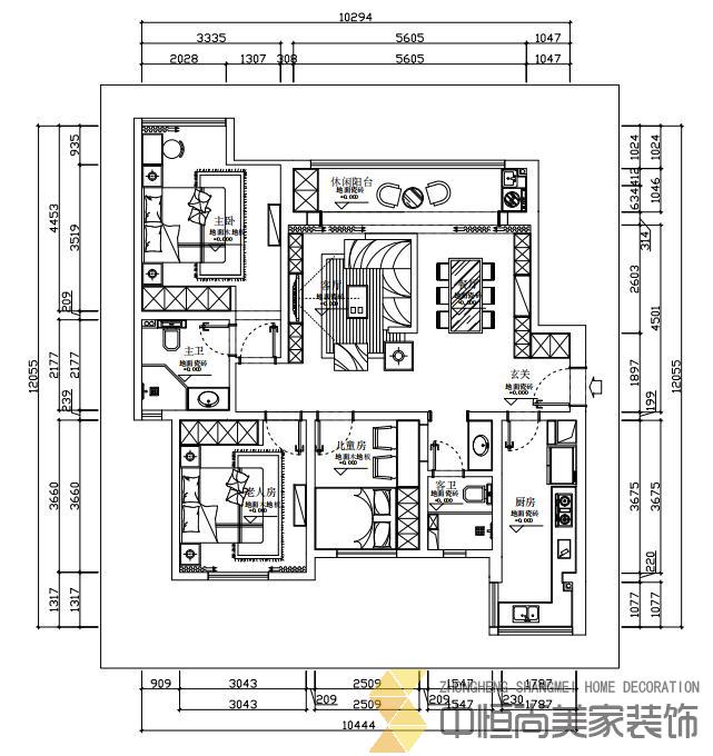
  • 原始结构三室两厅两卫。厨房原始空间较小,在结构上进行调整。
装修详情
累加访问量2341
预约业主共946
  • 风格: 现代简约
  • 户型: 三居室装修
  • 面积: 100-130㎡
龙湖香醍国际效果图龙湖香醍国际效果图龙湖香醍国际效果图龙湖香醍国际效果图龙湖香醍国际效果图龙湖香醍国际效果图龙湖香醍国际效果图

评价

我要评价

满意度:
验证码: 验证码,看不清楚?请点击刷新验证码

按此风格设计

已有946人提交

提交信息,试试看!

已有268人提交