先装修满意后付款,让您装修0风险【自养工人,川派工艺,品牌材料,环保整装】
企业微博   |  企业微信       网站地图
029-85229800
服务热线:西安小寨西旅国际6F
主页 > 精彩案例>御锦城效果图

御锦城效果图

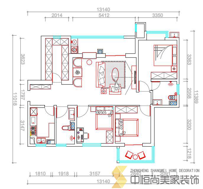
  • 原建筑户型结构比较方正,因位于一楼,在和物业进行协商后,将入户门口的小储物间扩建成比较大的衣帽间,满足家里的收纳需求,原始户型厨房较小,客卫生间比较大,所以将厨房扩大卫生间缩小,可增加橱柜空间,满足厨房需求。
装修详情
累加访问量3273
预约业主共998
  • 风格: 新中式
  • 户型: 三居室装修
  • 面积: 100-130㎡
  • 小区: 西安御锦城小区
御锦城效果图御锦城效果图御锦城效果图御锦城效果图御锦城效果图御锦城效果图

评价

我要评价

满意度:
验证码: 验证码,看不清楚?请点击刷新验证码

按此风格设计

已有998人提交

提交信息,试试看!

已有268人提交