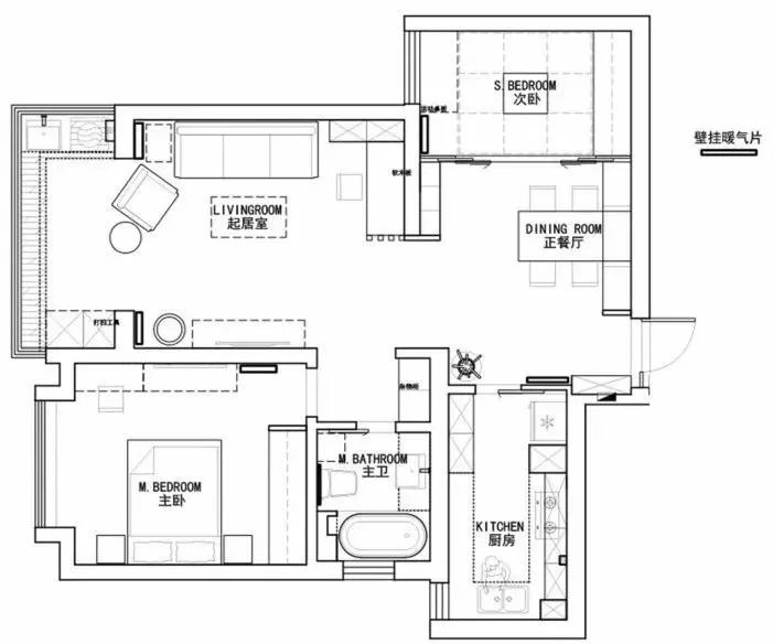
89㎡日式小两居,大爱餐厅旁的多功能榻榻米小房!
-
日期:2022-07-19
-
来源:本站
-
点击:1640
小恒今天分享的这套89平米的小二房,在装修的时候采用了大量的原木,质感较强的日式风格搭配,整个空间的布局搭配合理大方,给人的感觉也特别的温馨舒适,轻盈明亮。尤其是餐厅旁的榻榻米和室设计,不仅收纳空间大,也是一个很好的休闲之处,还可做客房。
进门后的左手边是个通顶的的鞋柜,中部与底部留空的设计,很实用,中间层射灯让入门的小空间变得更加明亮起来了。
餐厅区域以木地板与原木之感的餐桌椅搭配,随意添加一些鲜花或绿植,都能营造出自然清新的舒适家居氛围。
在柜门与细节的地方,则是加入了白色的搭配,让这个空间显得更加自然明亮。
餐桌的线条感而细腻,美感十足,过道旁边一个收纳柜+展示书架的组合设计,摆上书籍后,更是显得文艺精致。
餐桌上一盆简单的插画,为生活带来了温情的气息。
餐厅旁是个榻榻米空间,不占用多大的空间却是一个独立的空间,是一个多功能的空间。
这道屏风般的推拉门拉上后,这个小空间既可以作为独立的书房,也可以作为休闲室,还能作为小客房。
打通阳台的客厅,让小空间显得更加的宽敞明亮。简洁的电视墙,木质的电视柜,同时把暖气片布置在电视墙侧边的这面墙上,整个空间都显得格外的优雅大方。
舒适的布艺沙发,取消茶几的摆设,使原本不在的客厅更加宽敞舒适了。沙发的一角,打造成了一个小书房。
卧室超大的落地窗,搭配上温馨优雅的窗帘,让空间充满了自然与舒适的氛围感,置身其中你能感受到满满的轻松与惬意。
大面积的留白,让小卧室看起来更大,更明亮。
厨房的面积较为紧凑,U字形的布局,以木色橱柜为主,搭配白色方块的墙砖,还有灰色的地板砖,整个空间都显得格外的文艺精致。
卫生间地面与墙面都铺设着木纹砖,洗手盆柜的木色材质搭配起来很是统一和谐,中间的玻璃隔断让整个空间显得更加的时尚大方。

