先装修满意后付款,让您装修0风险【自养工人,川派工艺,品牌材料,环保整装】
企业微博
|
企业微信
网站地图
家装案例
家装案例
工装案例
新闻
设计师
工地
小区
商城材料
装饰公司
热门搜索:
家装案例
029-85229800
服务热线:西安小寨西旅国际6F
网站首页
装修报价
精彩案例
VR全景
风格展示
设计团队
开放工地
精彩活动
装修百科
关于企业
团装小区
首页
>
团装小区
>
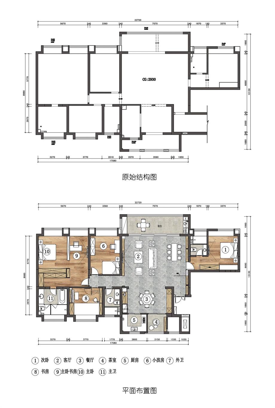
【合能公馆】小区效果图
46
22
14
姓名:
电话:
户型:
面积:
【合能公馆】小区效果图
合能公馆
现代简约