先装修满意后付款,让您装修0风险【自养工人,川派工艺,品牌材料,环保整装】
企业微博   |  企业微信       网站地图
029-85229800
服务热线:西安小寨西旅国际6F

找到自家小区,快速获得现成的设计案例!

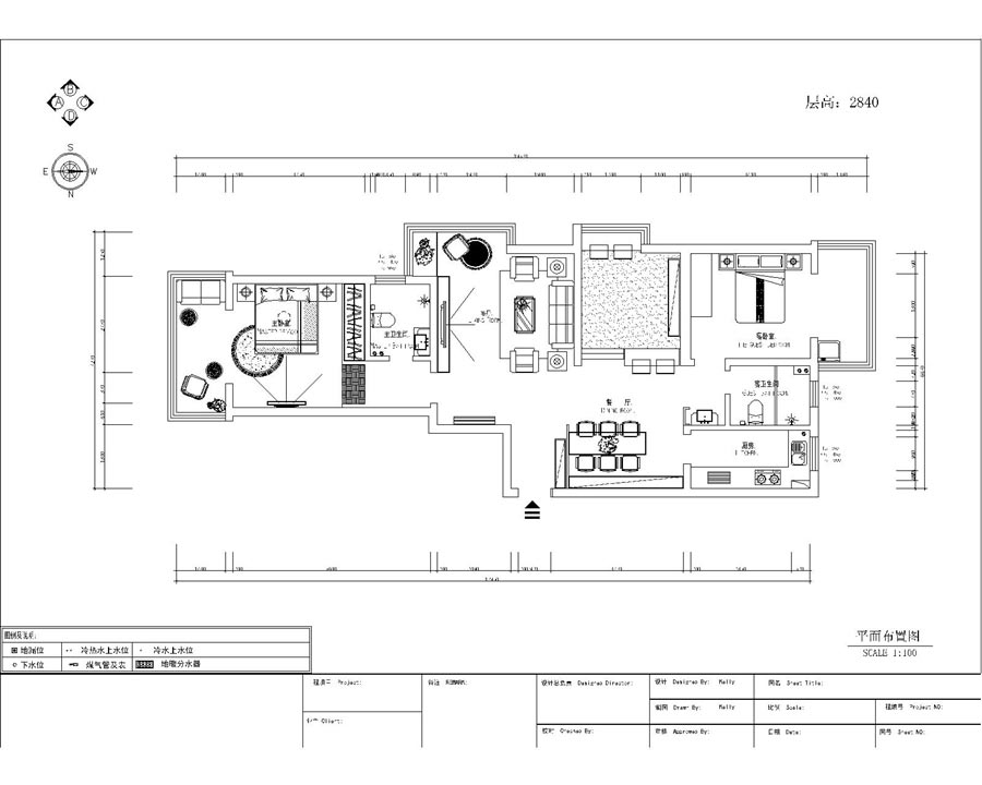
首页 > 找我家 > 金地国际城2期阳光里 > 户型:三居 3#C户型

户型:三居 3#C户型

  • 日期:2016-04-28
  • 点击:757

户型分析:

设计效果图:

提交信息,试试看!

已有268人提交