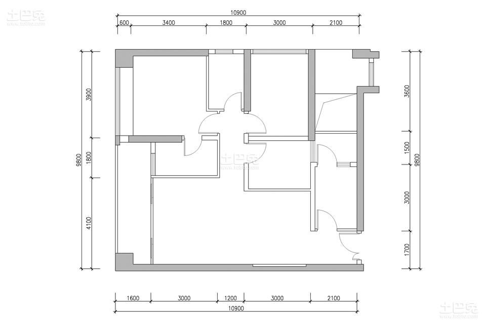
户型:三居 3#D户型
-
日期:2016-04-28
-
点击:652
户型:三居 3#D户型
设计效果图:



找到自家小区,快速获得现成的设计案例!
日期:2016-04-28
点击:652
户型:三居 3#D户型
设计效果图:


