先装修满意后付款,让您装修0风险【自养工人,川派工艺,品牌材料,环保整装】
企业微博   |  企业微信       网站地图
029-85229800
服务热线:西安小寨西旅国际6F

找到自家小区,快速获得现成的设计案例!

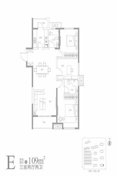
首页 > 找我家 > 西安保利·天悦小区 > 户型:3室2厅2卫109平米

户型:3室2厅2卫109平米

  • 日期:2017-12-01
  • 点击:1346

  






提交信息,试试看!

已有268人提交