先装修满意后付款,让您装修0风险【自养工人,川派工艺,品牌材料,环保整装】
企业微博   |  企业微信       网站地图
029-85229800
服务热线:西安小寨西旅国际6F
主页 > 精彩案例>暖山西安效果图

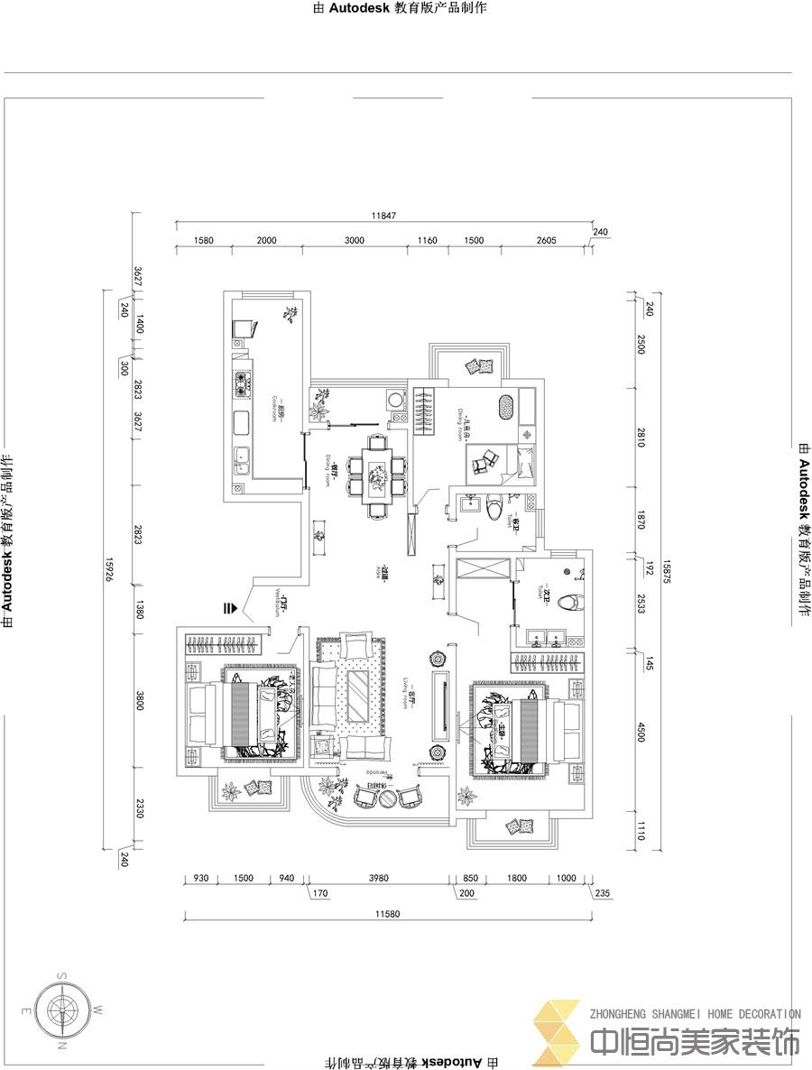
暖山西安效果图

  • ■ 设计说说:年轻夫妇的新婚之家,地面与吊顶的设计,用菱形斜线的元素构建不一样的视觉冲击力。借助壁纸竖条纹的不同颜色明确空间感,配合青花瓷装饰盘,给整个空间锦上添花。 ■ 主要用材:壁纸 地板 铁艺 桑拿板
装修详情
累加访问量1903
预约业主共786
  • 户型: 三居室装修
  • 面积: 100-130㎡
  • 工程造价: 16万
暖山西安效果图暖山西安效果图暖山西安效果图暖山西安效果图暖山西安效果图

评价

我要评价

满意度:
验证码: 验证码,看不清楚?请点击刷新验证码

按此风格设计

已有786人提交

提交信息,试试看!

已有268人提交