先装修满意后付款,让您装修0风险【自养工人,川派工艺,品牌材料,环保整装】
企业微博   |  企业微信       网站地图
029-85229800
服务热线:西安小寨西旅国际6F
主页 > 精彩案例>逸翠尚府效果图

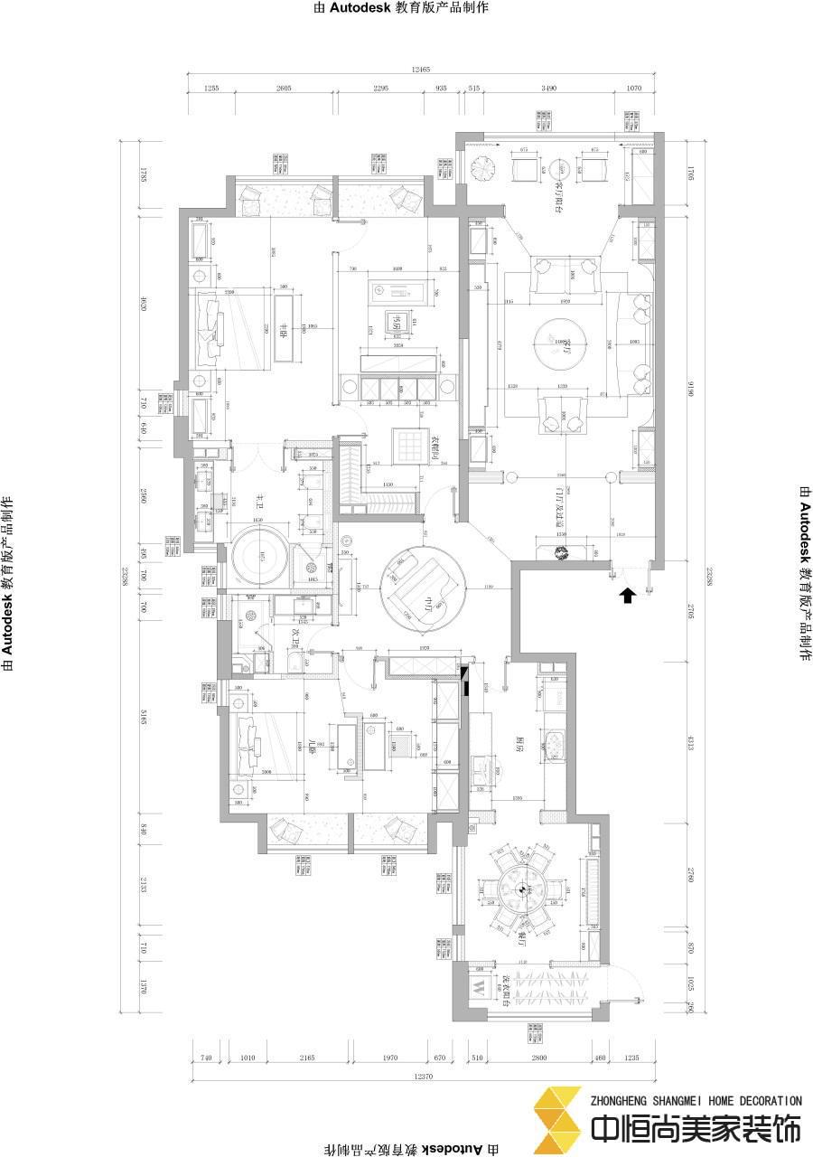
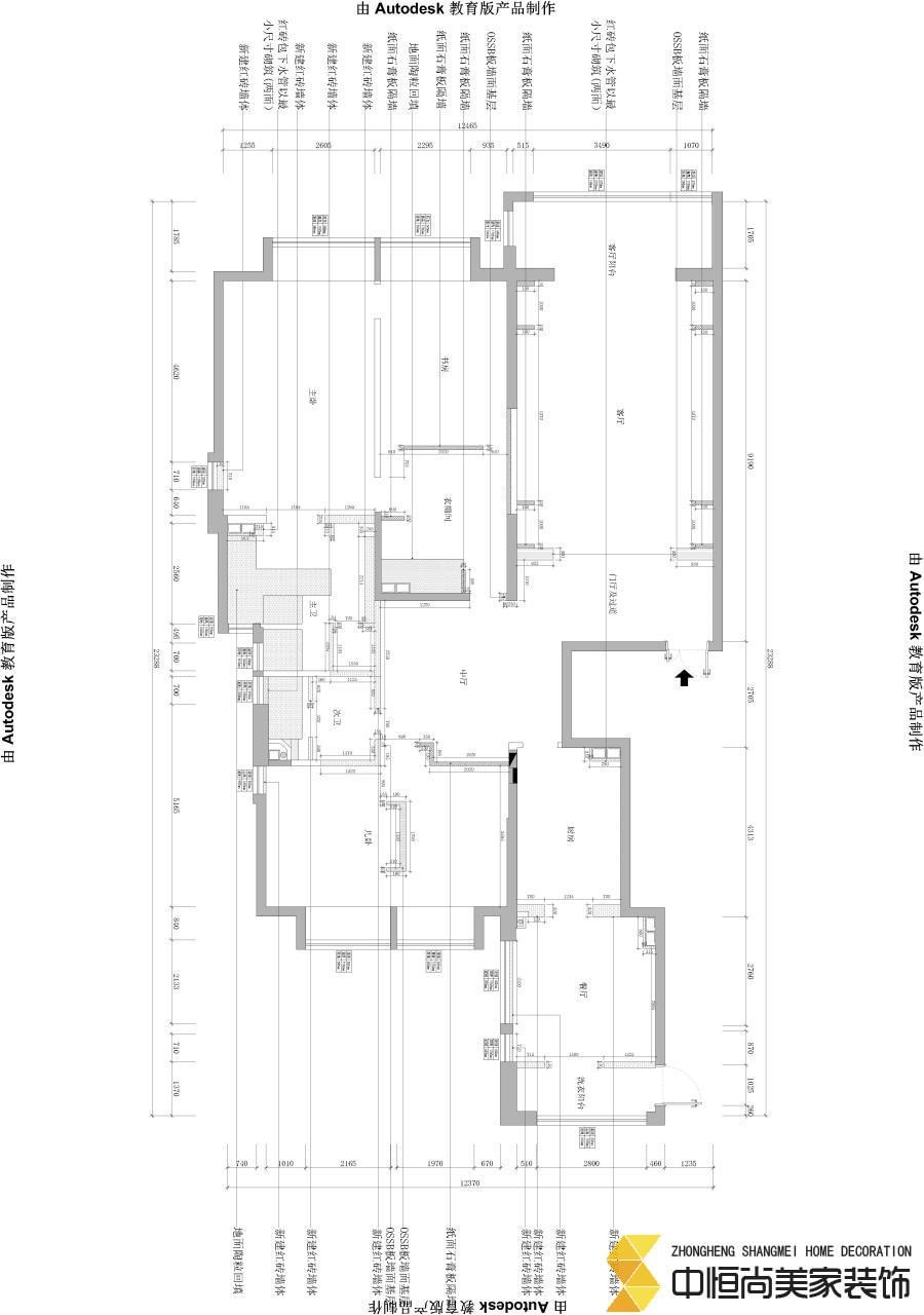
逸翠尚府效果图

装修详情
累加访问量2171
预约业主共896
  • 面积: 150㎡以上
  • 设计师: 王疏影
逸翠尚府效果图逸翠尚府效果图逸翠尚府效果图逸翠尚府效果图逸翠尚府效果图逸翠尚府效果图逸翠尚府效果图逸翠尚府效果图

评价

我要评价

满意度:
验证码: 验证码,看不清楚?请点击刷新验证码

设计师

王疏影
首席设计师
免费预约 在线Q Ta

按此风格设计

已有896人提交

提交信息,试试看!

已有268人提交